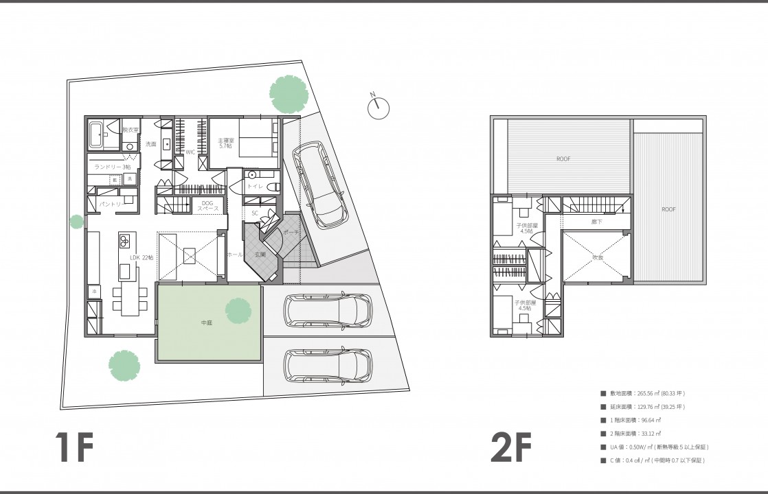
おうちDATA
家族構成:ご夫婦+お子さん2人(将来) 4人家族
間取り:3LDK+シューズクローク+パントリー+ランドリー+ファミリークローゼット
敷地面積:80坪
延床面積:39坪
UA値:0.50 C値(中間):0.3

プライベートな庭を望む吹抜が開放的なお宅です。
ダイニングテーブルと一体となった約4.4Mのキッチンがインテリアの中心となり
グレーを基調とした中に、ブラックと木目をしつらえたスタイリッシュな空間となっています。
リビングが吹抜になっており開放的なLDKからは、目隠し壁で囲われたプライベートな庭を望むことが出来ます。
玄関やキッチン、洗面には視線の抜ける窓があり外との繋がりを感じることが出来ます。
脱衣・ランドリー・ファミリークローゼットのコンパクトな家事動線も特徴の一つです。
その他にもたくさんの見どころがあるお宅ですので是非ご来場ください。お待ちしています!!

■開催場所 袋井市豊沢字山崎 ※ご予約後に詳細な開催地をお伝えさせていただきます
■開催期間 8月30日(土) ~ 9月15日(月)
①10:00~11:30
②11:30~13:00
③13:30~15:00
④15:00~16:30
⑤16:30~18:00
⑥18:00~19:30

グレーを基調とした落ち着きのある空間に、吹き抜けの大きな開口部から光と風が広がり、心地よい解放感を感じられるLDK。プライベートな中庭を望むことで、外に開きながらも安心感に包まれる、特別なひと時を楽しめる空間になっています。

ブラックと木目を基調にしたスタイリッシュなキッチンに、ペンダントライトが美しく映え、ダイニングとひと続きになることで迫力ある空間を演出しています。

お施主様こだわりの造作の洗面台、大きな一面鏡に間接照明で照らされたアクセントのタイルが上品な空間を創り出しています。

ブラックと木目で洗練された空間にはお施主様が選んだ世界に一つだけのフラワーシャンデリアが輝きます。

ブラックのクロスに格子のアクセントが入った寝室。
木目の格子を入れることで、シックで落ち着きのある空間になっています。
他にも家事楽を追求した動線や照明が目を惹く玄関など見所沢山の現場見学会となっております。
沢山のご来場お待ちしております。






